Bliżniak CASTOR

Bliź­niak CASTOR

Bliź­niak o łącznej powierzchni 197,20 m2

1 seg­ment bliź­ni­aczy, 2 lokale o łącznej powierzchni 249,8 m2

bliźniak prefabrykowany projekt

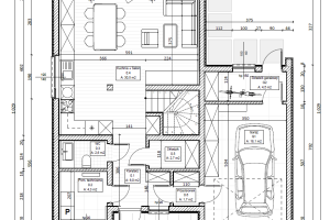
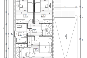
Rzuty

SOLE 100 elewacje
SOLE 100 rzut

POD­STA­WOWE PARA­ME­TRY BUDYNKU:

  • Powierzch­nia użytkowa: 298,60 m2
  • Powierzch­nia zabu­dowy: 291,5 m2
  • Powierzch­nia całkowita: 2124,9 m2
  • Wysokość: 8,49 m

Zapy­taj o szczegóły